Bandeau jpo 2026

Bandeau jpo 2026

Ensemble Sacré-Cœur Saint Chély d'Apcher - Lozère

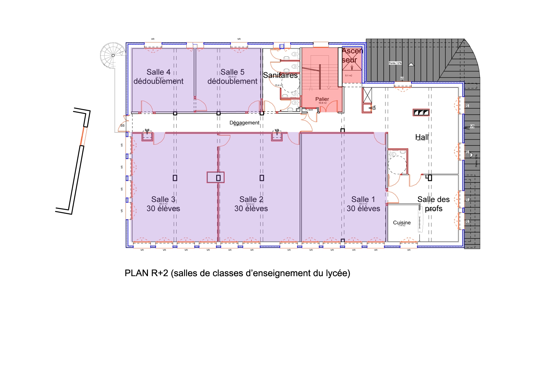
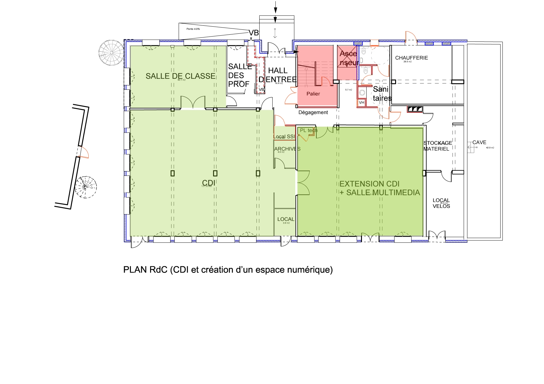
Rénovation de l'AEH: bâtiment du Lycée général

Le mardi, 29 mars 2011

Dans L'Ensemble Scolaire Sacré-Coeur

Rénovation de l'AEH: bâtiment du Lycée général